防火卷簾門是什么
                    
                        作者:錦宏門業  
                        日期:2024-05-10 14:29:36  
                        閱讀量:0
                    
                      防火卷簾是一種適用于建筑物較大洞口處的防火、隔熱設施。常見的防火卷簾有:鋼質防火卷簾、無機纖維復合防火卷簾以及特級防火卷簾。與普通卷簾門不一樣的是,防火卷簾具有很好的防火性能,其耐火完整性遠大于普通卷簾門。特級防火卷簾除了耐火完整性以外,還具有隔熱和防煙性能。
  防火卷簾廣泛應用于工業與民用建筑的防火分隔處,能有效地阻止火勢蔓延,保障群眾的生命財產安全。因此,在驗收過程中應對其設置情況、控制及反饋、急停逃生功能進行重點檢查。
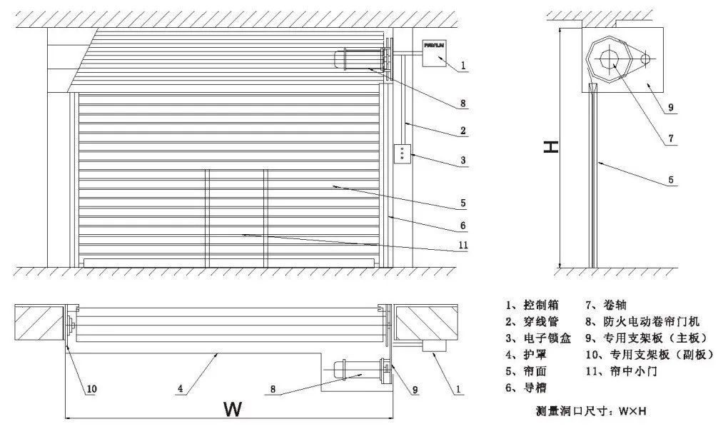
  結構組成

  防火卷簾由簾面、導軌、座板、門楣、箱體并配以卷門機和控制箱等結構組成,
  防火卷簾的簾面平時卷放在卷軸上,操作人員平時通過按鈕來控制卷門機運轉,帶動由鏈條和鏈輪組成的傳動機構實現簾面啟閉。火災發生時,當環境溫度、煙氣濃度達到溫感、煙感探測器感應范圍時,探測器會發出報警信號,控制箱接收到報警信號后,自動控制防火卷簾關閉至中停位置,延時一段時間后繼續關閉至完全閉合。在電力被切斷的情況下,操作人員拉動卷門機上的手動拉鏈使卷簾靠自重下降,另外卷門機上還配有溫控釋放裝置,發生火災時環境溫度升高使其感溫元件動作后,卷簾靠自重下降直至關閉。